CAT ES   EN
 

RESTORATION OF A HOUSE INTO TWO HOUSES IN AMURRIO (ÁLAVA)

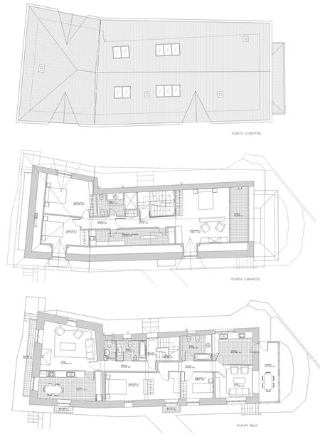
Restoration of a house into two houses in Amurrio (Álava)

Area: 507 m2

Date: 2.005

Location: Amurrio (Álava)