CAT
ES
EN
HOME
ABOUT US
STRUCTURAL CONSULTANTS
OWN WORKS
CONTACT
HOME
ABOUT US
Team
Founding partners:
Juan Ignacio Eskubi Ugarte
Núria Turró i Bosch
Team:
Cristina Mas
Marta Marbà
Ma Isabel Umbert
Various:
Collaborators
Have collaborated
STRUCTURAL CONSULTANTS
Industry
Rehabilitation and reform
Commercial and administrative buildings
Sports buildings
Civil buildings
Sanitary buildings
Educational buildings
Urban projects
Art and assets
Structural elements
Structures and expert reports
Housing
OWN WORKS
Housing
Retail
Various
CONTACT
OWN WORKS
OWN WORKS
Housing
Retail
Various
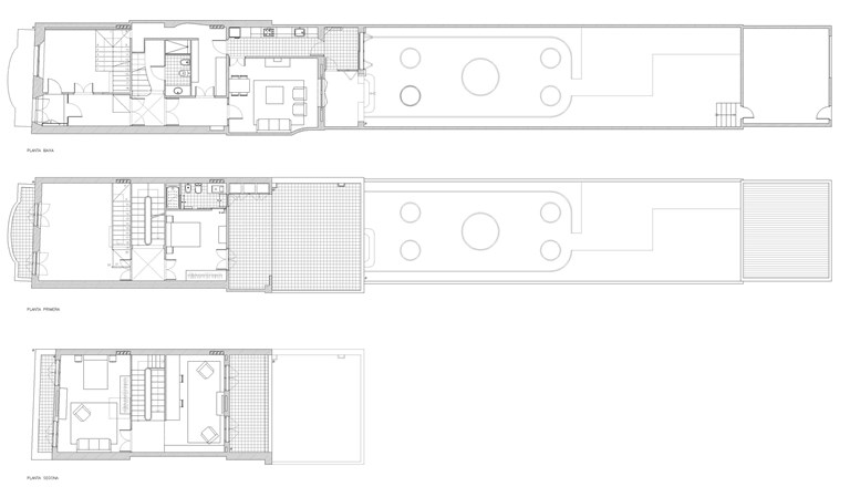
REFURBISHING AND RESTORATION OF A HOUSE IN MALGRAT DE MAR
Area: House 270m2 + 31m2
Date: 2.013
Location: Malgrat de Mar, Maresme. Barcelona