CAT ES   EN
 

REFURBISHING AND RESTORATION OF A HOUSE IN MALGRAT DE MAR

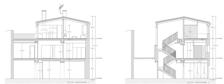
Superficie construida: Vivienda 320 m2 

Año de la reforma: 2.015

Situación: Malgrat de Mar, Maresme. Barcelona