CAT ES   EN
 

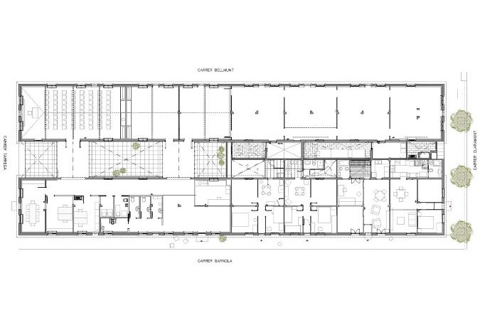
EXECUTIVE PROJECT OF THE NEW MUSEUM EQUIPMENT OF THE CHEAP HOUSES

Architects: Ricard Mercadé i Aurora Fernández architects S.L.P.
Area: 706 m2
Budget: 1.482.800 € 
Date: 2020
Location: Neighborhood of Bon Pastor, Barcelona