CAT
ES
EN
HOME
ABOUT US
STRUCTURAL CONSULTANTS
OWN WORKS
CONTACT
HOME
ABOUT US
Team
Founding partners:
Juan Ignacio Eskubi Ugarte
Núria Turró i Bosch
Team:
Cristina Mas
Marta Marbà
Ma Isabel Umbert
Various:
Collaborators
Have collaborated
STRUCTURAL CONSULTANTS
Industry
Rehabilitation and reform
Commercial and administrative buildings
Sports buildings
Civil buildings
Sanitary buildings
Educational buildings
Urban projects
Art and assets
Structural elements
Structures and expert reports
Housing
OWN WORKS
Housing
Retail
Various
CONTACT
CONSULTANT STRUCTURES
Industry
Rehabilitation and reform
Commercial and administrative buildings
Sports buildings
Civil buildings
Sanitary buildings
Educational buildings
Urban projects
Art and assets
Structural elements
Structures and expert reports
Housing
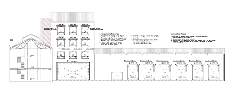
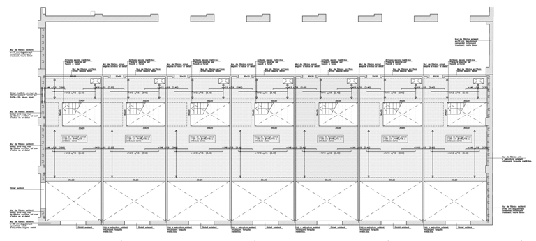
RESIDENTIAL BUILDING IN 22@ NEIGHBORHOOD
Architect:
JORDI GARCÉS
Area: 15.700 m2
Budget: 3.832.000 €
Date: 2.006-2.010
Location: Barcelona