CAT ES EN
 

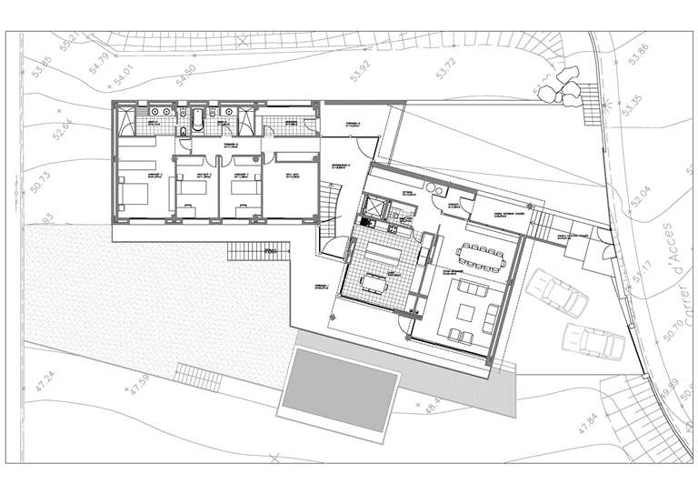
HABITATGE UNIFAMILIAR AL MARESME

Obra nova

Superfície construïda: 730 m2

Any de construcció: 2.008-2.009

Situació: Malgrat de Mar, Barcelona