CAT ES EN
 

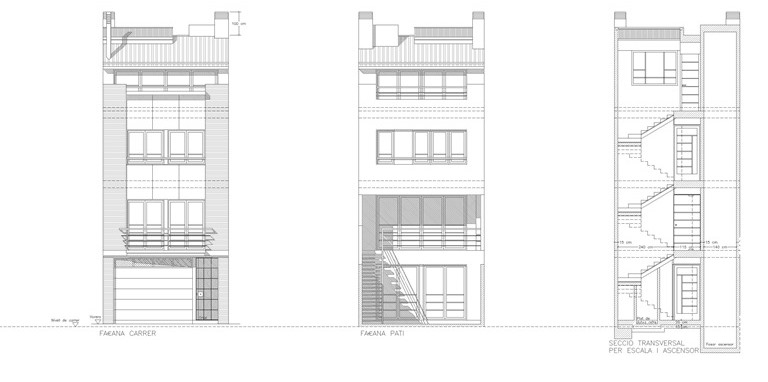
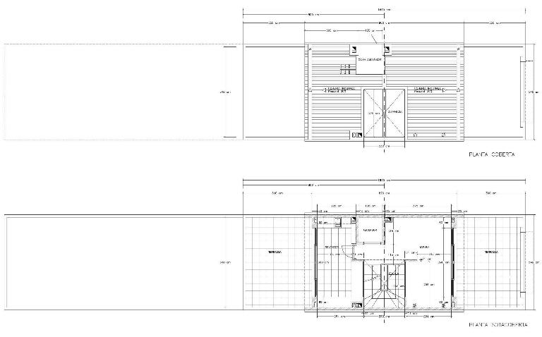
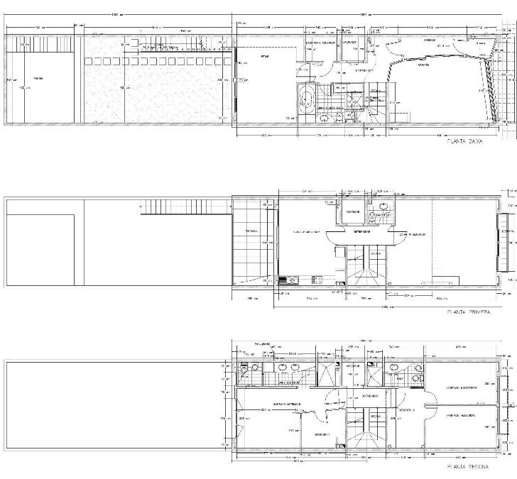
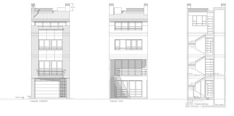
HABITATGE UNIFAMILIAR ENTRE MITGERES

Obra nova

Superfície construïda: 300 m2

Any de construcció: 1997-1998

Situació: Malgrat de Mar (Barcelona)