CAT ES EN
 

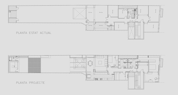
REFORMA D'UNA PLANTA PRIMERA ENTRE MITGERES A MATARÓ

Superfície construïda: Habitatge 200 m2 + pati 128m2

Any de la reforma: 2.011

Situació: Mataró, Maresme. Barcelona