CAT ES EN
 

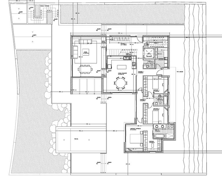
HABITATGE UNIFAMILIAR A SANTA SUSANNA

Obra Nova

Superfície construïda: 250 m2

Any de construcció: 2.008-2.009

Situació: Santa Susanna, Barcelona