CAT ES EN
 

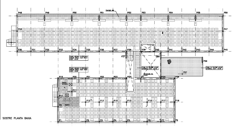
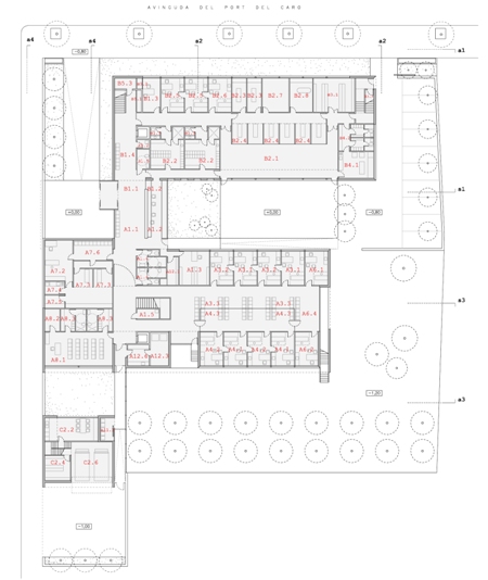
CENTRE POLIVALENT A ROQUETES

Arquitectes: BOSCH-TARRÚS arquitectes SLP

Superfície d'estructura: 3.300 m2

Pressupost d'execució material: 2.296.147 €

Any del projecte: 2.012

Situació: Roquetes, Tarragona